Transportador de correia pequeno hcii
Cat:Transportador de correia em torno
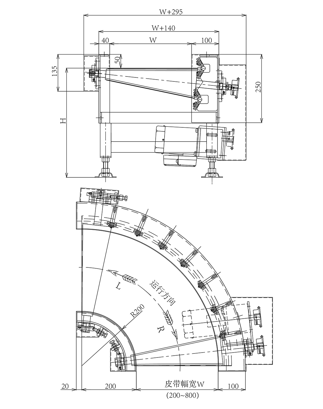
Através da cooperação entre a roda guia e o trilho -guia, o cinto pode ser puxado e guiado para correr. Recurso...
Estrutura avançada, desempenho de alta qualidade, fácil de usar, alta confiabilidade e durabilidade.
A máquina de girar a correia em torno é um equipamento de transmissão comum, usado principalmente para transferir materiais de uma linha de transportador de correia para outro transportador de correia de reversão de 90 graus ou 180 graus. Consiste em componentes como cintos, molduras, rolos de acionamento, rolos de reversão, paletes portadores de carga, rolos de retorno e dispositivos de tensionamento. O material da correia transportadora da máquina de girar a correia inclui vários materiais como PVC, PU, PVK, etc. Além de serem usados para transmitir materiais comuns, também pode atender ao transporte de materiais com requisitos especiais, como resistência ao óleo, ácido e corrosão alcalina e anti-estático.

Através da cooperação entre a roda guia e o trilho -guia, o cinto pode ser puxado e guiado para correr. Recurso...
Através da cooperação entre a roda guia e o trilho -guia, o cinto pode ser puxado e guiado para correr.
Recursos: baixo custo, carga leve e baixa velocidade.
Dimensão padrão
Hcii-s
| Largura da correia | 200 | 300 | 400 | 500 |
| Largura do transportador | 520 | 620 | 720 | 820 |
| Ângulo | 90 | Energia motora | 90W 、 120W 、 200W |
| Altura | 270 a 1100 pés de altura com | Poder | AC100V (fase monofásica) · AC200V (fase monofásica) · AC200V (trifásica) |
| Velocidade | Velocidade fixa/variável | Cinto | Cinto de poliuretano |
| Capacidade | 10 kg/conjunto (quando carga horizontalmente dispersa) |
Como mercadorias em movimento da bolsa, por favor, retener a 40% dos dados de capacidade de aboving.
Hcii-m
| Largura da correia | 300 | 400 | 500 | 600 |
| Largura do transportador | 680 | 780 | 880 | 980 |
| Ângulo | 90 | Energia motora | 200W 、 400W |
| Altura | Especifique, as pernas são opcionais | Poder | AC200V (trifásico) |
| Velocidade | Velocidade fixa | Cinto | Cinto de poliuretano |
| Capacidade | 40kg/conjunto (quando carga horizontalmente dispersa) |
Como mercadorias em movimento da bolsa, por favor, retener a 40% dos dados de capacidade de aboving.
Velocidade da correia HCII-S
| Razão | Velocidade No. | Velocidade fixa 50/60 (Hz) (m/min) | Velocidade não | Velocidade variável 50/60 (HZX (m/min) |
| 1/180 | T1 | 16./1.9 | H1 | 0,11 ~ 2,1 |
| 1/2050 | T2 | 1.8/2.2 | H2 | 0,13 ~ 2,5 |
| 1/2020 | T3 | 2.3/2.8 | H3 | 0,16 ~ 3,1 |
| 1/90 | T4 | 3.1/3.7 | H4 | 0,21-4.2 |
| 1/75 | T5 | 3.8/4.5 | H5 | 0,25 ~ 5,0 |
| 1/60 | T6 | 4.7/5.6 | H6 | 0,31 ~ 6,2 |
| 1/50 | T7 | 5.6/6.7 | H7 | 0,38 ~ 7,5 |
| 1/36 | T8 | 7.8/9.4 | H8 | 0,52-10.4 |
| 1/30 | T9 | 9.3/11.2 | H9 | 0,63 ~ 12,5 |
| 1/25 | T10 | 11.3/13.5 | H10 | 0,75 ~ 15,0 |
| 1/18 | T11 | 15.6/18.7 | H11 | 1,04 ~ 20.8 |
| 1/15 | T12 | 18.8/22.5 | H12 | 1.25 ~ 25.0 |
| 1/12.5 | T13 | 22.5/27.0 | H13 | 1,50 ~ 30.0 |
Velocidade da correia HCII-M
| Razão | Velocidade No. | Velocidade fixa 50/60 (Hz) (m/min) |
| 1/2020 | T1 | 15/18 |
| 1/90 | T2 | 20/24 |
Cálculo da velocidade da velocidade fixa: girar a velocidade 1500/1800rpm (50/60Hz), rolo de acionamento a 82.3, eficiência de direção: 95%
Cálculo de velocidade da velocidade variável: girar a velocidade 2000rpm (50; 60Hz), rolo de condução ``
Desenagem

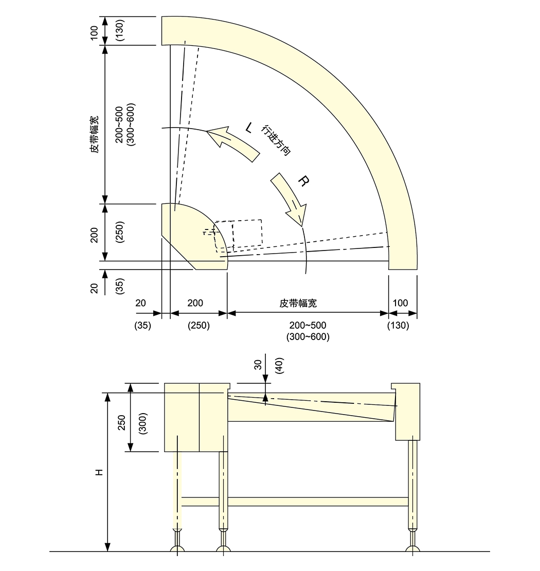
Através da cooperação entre a roda guia e a barra guia, o cinto é puxado e guiado para correr. Características:...
Através da cooperação entre a roda guia e a barra guia, o cinto é puxado e guiado para correr.
Características: baixo ruído, alta velocidade e uniformidade de correia.
Dimensão padrão
| Largura da correia | 200 | 300 | 400 | 500 | 600 | 700 | 800 |
| Largura do transportador | 520 | 620 | 720 | 820 | 920 | 1020 | 1120 |
| Ângulo | 90 | Energia motora | 200W 、 370W 、 750W |
| Altura | 380 a 1100 pés de altura com | Poder | A (AC110V monofásico) B (AC200V monofásico) C (AC200V/380V Três-fase) |
| Velocidade | Velocidade fixa | Cinto | Cinto de poliuretano |
| Capacidade | 100 kg/conjunto (quando carga horizontalmente dispersa) |
Como mercadorias em movimento da bolsa, por favor, retener a 40% dos dados de capacidade de aboving.
Velocidade da correia
| Razão | Velocidade No. | Velocidade fixa 50/60 (Hz) (m/min) | Velocidade No. | Velocidade variável 50Hz (m/min) |
| 1/180 | T1 | 1.6/1.9 | H1 | 0,09-1.7 |
| 1/2050 | T2 | 1.9/2.3 | H2 | 0.1-2.1 |
| 1/2020 | T3 | 2.4/2.9 | H3 | 0,13-2.6 |
| 1/90 | T4 | 3.2/3.8 | H4 | 0,17-3.5 |
| 1/75 | T5 | 3.8/4.6 | H5 | 0,2-4.2 |
| 1/60 | T6 | 4.9/5.8 | H6 | 0,25-5.1 |
| 1/50 | T7 | 5.8/6.9 | H7 | 0,3-6.2 |
| 1/36 | T8 | 8/9.5 | H8 | 0,4 ~ 8,6 |
| 1/30 | T9 | 9.5/11.5 | H9 | 0,5-10.4 |
| 1/25 | T10 | 11.5/13.7 | H10 | 0,6-12.4 |
| 1/18 | T11 | 15.9/19 | H11 | 0.9-17.3 |
| 1/15 | T12 | 19.3/22.3 | H12 | 1 ~ 20.6 |
| 1/12.5 | T13 | 23/27.4 | H13 | 1.2-24.8 |
| 1/7.5 | T14 | 38.3/45.8 | H14 | 2.1-41.4 |
| 1/5 | T15 | 57.5/68.6 | H15 | 3.1-62 |
| 1/3.6 | T16 | 79.9/95.4 | H16 | 4.3-86.1 |
| 1/3 | T17 | 95.8/114.4 | H17 | 5.2-103.4 |
Cálculo da velocidade da velocidade fixa: girar a velocidade 1500/1800rpm (50/60Hz), rolo de acionamento a 82.3, eficiência de direção: 95%
Cálculo de velocidade da velocidade variável: girar a velocidade 2000rpm (50; 60Hz), rolo de condução ``
Desenagem

Através da cooperação entre a corrente e a roda guia, a correia pode ser puxada e guiada. Recursos: carga pesad...
Através da cooperação entre a corrente e a roda guia, a correia pode ser puxada e guiada.
Recursos: carga pesada e velocidade rápida.
Dimensão padrão
| Largura da correia | 400 | 600 | 800 | 1000 | 1200 | 1400 | 1600 | 1800 |
| Largura do transportador | 525 | 725 | 925 | 1125 | 1325 | 1525 | 1725 | 1925 |
| Ângulo | 90 | Energia motora | 370W 、 750W 、 1,1kW 、 1,5kW 、 2,2kW |
| Altura | 550 a 2000 pés de altura com | Poder | A (AC110V monofásico) B (AC200V monofásico) C (AC200V/380V Três-fase) |
| Velocidade | Velocidade fixa | Cinto | Poli (n-vinil carbazol) |
| Capacidade | 200 kg/conjunto (quando carga horizontalmente dispersa) |
Como mercadorias em movimento da bolsa, por favor, retener a 40% dos dados de capacidade de aboving.
Velocidade da correia
| Razão | Velocidade No. | Velocidade fixa 50/60 (Hz) (m/min | Velocidade No. | Velocidade variável 50Hz (m/min) |
| 1/2040 | T1 | 2.6/3.0 | H1 | 1.0-2.6 |
| 1/2020 | T2 | 2.8/3.5 | H2 | 1.1-2.8 |
| 1/2000 | T3 | 3.5/4.2 | H3 | 1.4 ~ 3,5 |
| 1/90 | T4 | 4.0/6.7 | H4 | 1.6 ~ 4.0 |
| 1/80 | T5 | 4.4/5.4 | H5 | 1.8-4.4 |
| 1/70 | T6 | 4.9/5.8 | H6 | 2.0-4.9 |
| 1/60 | T7 | 5.8/7.0 | H7 | 2.3-5.8 |
| 1/50 | T8 | 7.0/8.4 | H8 | 2.8 ~ 7.0 |
| 1/45 | T9 | 7.7/9.3 | H9 | 3.1 ~ 7.7 |
| 1/40 | T10 | 8.6/10.5 | H10 | 3.4 ~ 8.6 |
| 1/30 | T11 | 11.6/14.0 | H11 | 4.7 ~ 11.6 |
| 1/25 | T12 | 14.0/16.8 | H12 | 5.6 ~ 14.0 |
| 1/20 | T13 | 17.5/21.0 | H13 | 7.0-17.5 |
| 1/15 | T14 | 23.3/28.0 | H14 | 9.3 ~ 23.3 |
| 1/10 | T15 | 35.0/41.9 | H15 | 14.0-35.0 |
| 1/5 | T16 | 70.0/83.8 | H16 | 28.0-70.1 |
Cálculo da velocidade da velocidade fixa: girar a velocidade 1500/1800rpm (50/60Hz), rolo de acionamento a 82.3, eficiência de direção: 95%
Cálculo de velocidade da velocidade variável: girar a velocidade 2000rpm (50; 60Hz), rolo de condução ``
Desenagem
Por que a manutenção do transportador de rolos afeta diretamente a vida útil do sistema ...
Leia maisO que torna um transportador de rolos verdadeiramente resistente? Um transportador de ro...
Leia maisO que são transportadores de rolos e por que o tipo é importante? Transportadores de...
Leia maisPor que os transportadores de rolos continuam sendo a espinha dorsal do manuseio de materiais ...
Leia maisSistemas transportadores movimentam milhões de toneladas de materiais todos os dias e...
Leia maisTrazendo artesanato para o futuro.
No.60, Zhenhu North Road, cidade de Hudai, distrito de Binhu , Wuxi 214100, China







